Domy jednorodzinne w zabudowie szeregowej:
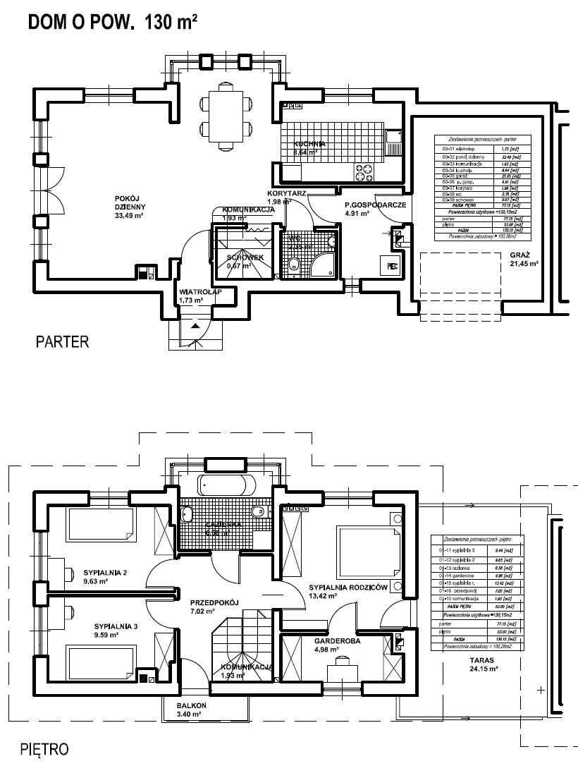
rzuty domu o pow. 130 m2